Property Overview

Hall-1

Hall-2

Dining-1

Dining-2

Master-1

Master-2

Guest-1

Guest-2

Kitchen-1

Utility

Balcony-1

Balcony-2

Kitchen-2

Bath-1

Bath-2

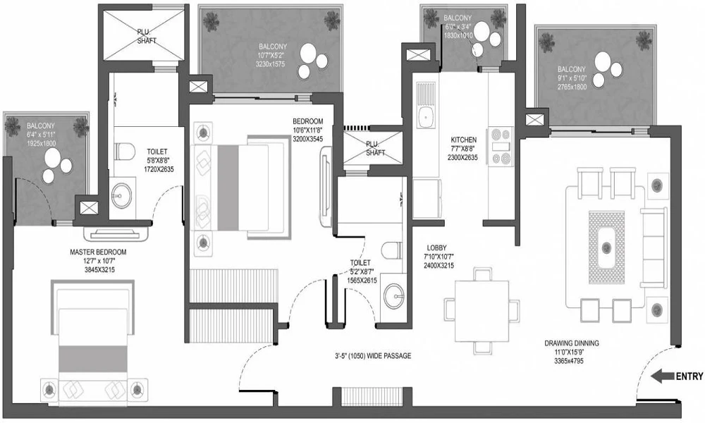
Floor Plan
















Godrej Oasis
Sector 88-A, Garhi Harsaru, Gurugram, Haryana 122505
Unit 604 (B)
Super Area
1307 sq. ft.
Price
1.46 Cr
6th FloorFloor
2 BathBathrooms
4 BalconiesBalcony
East FacingExit Facing
1 ParkingParking
Club, ParkBalcony View
Property Scores
7/10Sunlight
7/10Connectivity
7.5/10Locality
Why Buy this home?
- Kids & Elderly friendly
- 75% open green spaces
- Bank Approved (HDFC, SBI, ICICI)
- Full sports facilities
- Resort Style Club
- Piped gas & 24/7 water
Why buy from us
- Legally Verified
- 100% transparent and genuine
Area Breakdown

Super Area
1307 sq. ft.
Carpet Area
915 sq. ft.
Natural Light
Score7
Room Details
Floor Plan
Living & Dining
174.90 sq. ft.
11.00 × 15.90 Feet
Master Bedroom
135.90 sq. ft.
12.70 × 10.70 Feet
Family Bedroom
125.10 sq. ft.
10.60 × 11.80 Feet
Kitchen
67.76 sq. ft.
7.70 × 8.80 Feet
Balcony 1
55.64 sq. ft.
10.70 × 5.20 Feet
Bathroom 1
51.00 sq. ft.
5.80 × 8.80 Feet
Balcony 2
46.41 sq. ft.
9.10 × 5.10 Feet
Bathroom 2
45.24 sq. ft.
5.20 × 8.70 Feet
Balcony 4
32.70 sq. ft.
6.40 × 5.11 Feet
Balcony 3
20.40 sq. ft.
6.00 × 3.40 Feet

